Location: Rochdale, UK
Typology: Adaptive Reuse (Retail + Leisure & Culture)
Heritage Value: Historic Art Deco building
Client: Rochdale Council
Year: 2019
Design concept
-CONTINUITY
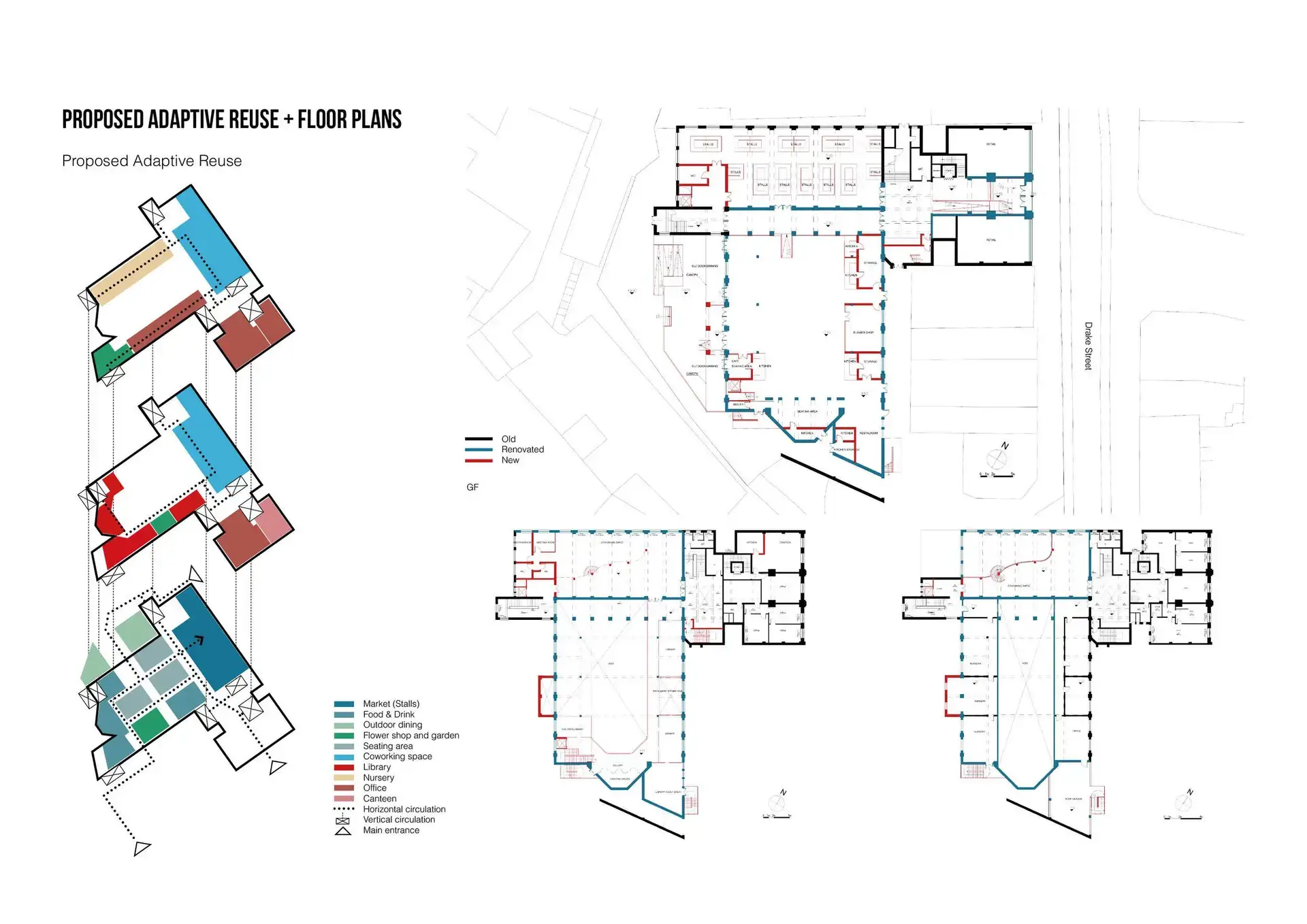
The project was required for adaptive intervention in the brief, which was on account of its original important position in Rochdale. A sufficient comprehension of the town and the building was my start point, hence the interpretation of “Continuity”.
Urbanism: A group of selective significant buildings of the town generated a continuous loop – “Rochdale cultural ring”. Moreover, to activate Nelson Street was to benefit the vision of Cultural Hub with a proposed entrance to the main hall. Ultimately, it is aimed at reviving the declined town.
Building: Based on the building survey, the gist of adaptive intervention has been considered throughout the process, such as the consideration of existing structures, materials, colours, major functions, and spaces. In addition, art deco, as the old feature of Champness Hall, is essential to be addressed as a heritage for the new design elements.
-old and new-
1) Old (contextualism): A process of analysing and understanding the nature and the qualities of place.
2) Old to New (adaptive intervention): A process of interpreting the adaptation and the derivation from the old.
3) New (juxtaposition): The insertions in building and town.
